Lokal użytkowy Krosno, Krakowska
Krosno Pokaż na mapie ›
Ogłoszenie archiwalne Wygasło: Czwartek, 19 Czerwiec, 2025 03:35
599 000 zł
Szczegóły ogłoszenia
- Kategoria: Biura i lokale / Sprzedaż
- Przeznaczenie:Handel i Usługi
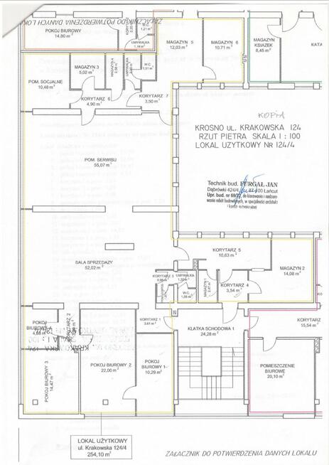
- Powierzchnia:251 m2
- Sprzedaż:Pośrednik
- Cena: 599 000 zł
Opis oferty
>> Krótki opis nieruchomościMamy przyjemność zaprezentować Państwu na sprzedaż lokal usługowy (niemieszkalny) o łącznej powierzchni 251 m2, znajdujący się w Krośnie przy ulicy Krakowskiej (województwo podkarpackie).
Lokal o doskonałej ekspozycji, znajduje się na pierwszy piętrze, z bezpośrednim wejściem z głównej ulicy! Dzięki dużej liczbie okien wnętrze jest doskonale doświetlone naturalnym światłem, co tworzy komfortowe warunki do pracy. Dodatkowym atutem jest możliwość wykorzystania okien jako przestrzeni reklamowej, co zapewnia świetną widoczność dla potencjalnych klientów.
Nieruchomość znajduje się na terenach objętych miejscowym planem zagospodarowania przestrzennego z oznaczeniem 2.U.2 jako tereny zabudowy usługowej, z podstawowym przeznaczeniem pod usługi komercyjne - pawilony handlowo-usługowe, w tym usługi obsługi komunikacji (gastronomia i motel).
Prezentowana nieruchomość to doskonała propozycja dla firm poszukujących przestrzeni dostosowanej do działalności usługowej. Osoby poszukujące lokalu o takich parametrach z pewnością docenią jego atrakcyjną lokalizację. W najbliższym otoczeniu znajduje się wiele punktów handlowych i usługowych, które generują duży ruch, co ma kluczowe znaczenie w branży usługowej. Dodatkowym atutem jest bliskość jednego z największych osiedli w Krośnie, co zwiększa potencjał pozyskania klientów na różnego rodzaju usługi.
Oferowany lokal, jak i cały budynek zarządzany jest przez Krośnieńską Spółdzielnie Mieszkaniową. Wysokość miesięcznego czynszu wynosi ok. 2500 zł.
>> Atuty:
Lokalizacja.
Nieruchomość z potencjałem.
Duża powierzchnia lokalu.
Możliwość dowolnej aranżacji.
Możliwość wykorzystania na różne cele usługowe.
Możliwość wydzielenia pomieszczeń wedle własnych potrzeb.
3 niezależne wejścia.
2 oddzielne liczniki prądu.
Bezpośredni parking przy budynku.
>> Media:
Ogrzewanie miejskie.
Prąd, woda, kanalizacja - według zużycia.
Cena: 599 000 zł do negocjacji!
Zadzwoń i umów się na prezentacje. Z przyjemnością pokażemy Ci to miejsce!
Kontakt do opiekuna oferty:
Aleksandra Guzik-Hec
Kwadraciak Biuro Nieruchomości
tel: 605 - pokaż numer telefonu -
e-mail: @
www.kwadraciak.krosno.pl
Numer oferty: KWA367212
Sprawdź zainteresowanie tym ogłoszeniem
Wyświetlenia
Data dodania
Ostatnio widziany
Obserwujących
Wysłane zapytania
Odsłony telefonu
Powiadom o podobnych ogłoszeniach
Lokalizacja: Krosno
Kategoria: Nieruchomości » Biura i lokale » Sprzedaż
Cena: od 509000 zł do 689000 zł Powierzchnia : od 213 m2 do 289 m2
Chcę otrzymywać powiadomienia o nowych ofertach
To ogłoszenie jest archiwalne i może być nieaktualne.
Aleksandra Guzik-Hec
Konto firmowe
Na Lento.pl od 12 lip 2021
Strona użytkownika
- Wypromuj ogłoszenie
- Zgłoś naruszenie
- Edytuj/usuń ogłoszenie
- Udostępnij ogłoszenie
- Dodaj na Facebook



















